top of page
Create Your First Project
Start adding your projects to your portfolio. Click on "Manage Projects" to get started
FJ Chalet
Project type
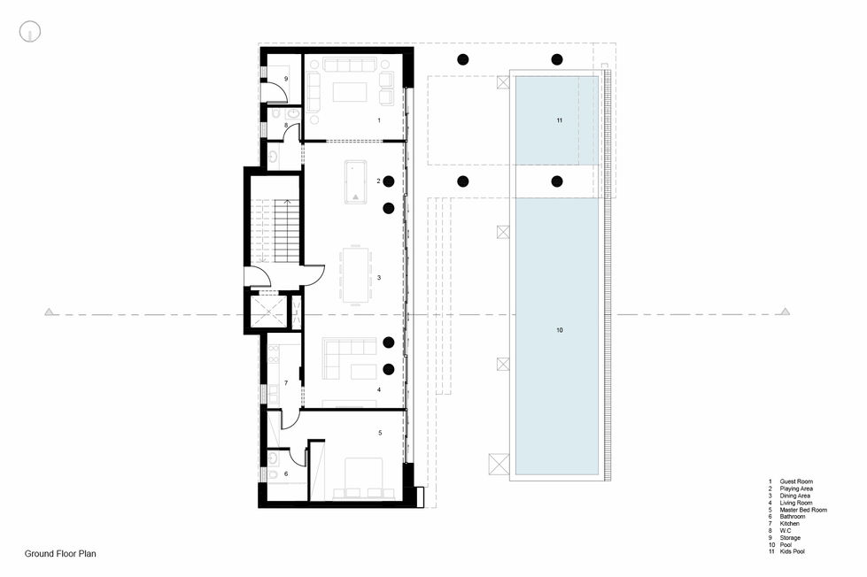
Private Duplex Residence
Date
2022
Location
Petra St Irbid - Jordan
Area
470 m²












bottom of page
Start adding your projects to your portfolio. Click on "Manage Projects" to get started
Private Duplex Residence
2022
Petra St Irbid - Jordan
470 m²











